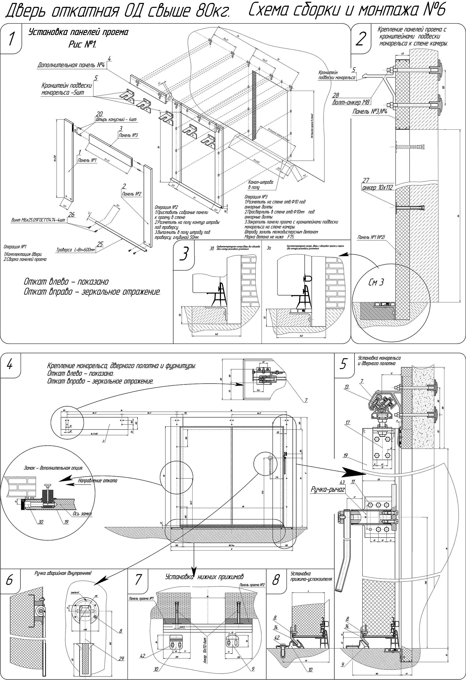
Каталог оборудования Холодильное оборудованиеДвери для холодильных камерОткатные холодильные двериОткатная холодильная дверь Север НТ-ОХД 800*1860/80 Откатная холодильная дверь Север НТ-ОХД 800*1860/80 Код товара: 008-453 Поделиться: WhatsAppTelegram СравнитьВерсия для печатиВ избранное 0 62 747 ₽ В корзину 0 шт Расчет стоимости доставкиОткудаМоскваСанкт-ПетербургАстраханьБарнаулБелгородБрянскВладивостокВолгоградВоронежЕкатеринбургИвановоИжевскИркутскКазаньКалининградКемеровоКировКраснодарКрасноярскКурскЛипецкМагнитогорскМахачкалаНабережные ЧелныНижний НовгородНижний ТагилНовокузнецкНовосибирскОмскОренбургПензаПермьПятигорскРостов-на-ДонуРязаньСамараСаратовСимферопольСтавропольТверьТольяттиТомскТулаТюменьУлан-УдэУльяновскУфаХабаровскЧебоксарыЧелябинскЯрославльКудаМоскваСанкт-ПетербургАстраханьБарнаулБелгородБрянскВладивостокВолгоградВоронежЕкатеринбургИвановоИжевскИркутскКазаньКалининградКемеровоКировКраснодарКрасноярскКурскЛипецкМагнитогорскМахачкалаНабережные ЧелныНижний НовгородНижний ТагилНовокузнецкНовосибирскОмскОренбургПензаПермьПятигорскРостов-на-ДонуРязаньСамараСаратовСимферопольСтавропольТверьТольяттиТомскТулаТюменьУлан-УдэУльяновскУфаХабаровскЧебоксарыЧелябинскЯрославльРассчитатьРасчет стоимости доставки указан приблизительный, более точный расчет Вам может осуществить сотрудник транспортной компании. Получить консультацию в Max Получить консультацию в Max Описание Характеристики Отзывы 0 Документы 2 Откатная холодильная дверь Север НТ-ОХД 800*1860/80 – это оптимальное решение для складов и помещений с регулируемым температурным режимом. Она идеально подходит для холодильных камер с интенсивным грузооборотом, где дверь часто открывают и закрывают. Дверь предназначена для установки в средне- и низкотемпературные промышленные холодильные камеры, склады и терминалы. Ее конструкция минимизирует «мертвое» пространство, необходимое для открытия, что особенно важно в условиях ограниченной площади. Конструктивные особенности: Надежность и удобство: Конструкция двери обеспечивает легкое и плотное закрывание и открывание без значительных усилий. Монорельсовая система позволяет двери автоматически герметизироваться под собственным весом, что гарантирует надежность и удобство эксплуатации. Полотно двери: Изготовлено из оцинкованного и окрашенного листового металла с наполнителем из пенополиуретана, что обеспечивает высокую теплоизоляцию, долговечность и устойчивость к внешним воздействиям. Низкотемпературное исполнение: Двери предназначены для эксплуатации при температурах от -5°С до -25°С. Они комплектуются двойным уплотнительным контуром и обогревающими ПЭНами, встроенными в алюминиевый профиль на дверном проеме, что предотвращает примерзание и обеспечивает стабильную работу в условиях низких температур. Толщина дверного полотна составляет 80 мм. Откатная дверь – это надежное и практичное решение для объектов с интенсивным грузооборотом, где ключевыми требованиями являются энергоэффективность, удобство эксплуатации и минимизация теплопотерь. Она идеально подходит для помещений, где важно обеспечить быстрое и легкое открывание и закрывание, сохраняя при этом стабильный температурный режим. Изображение товара, представленного на фото, может отличаться от его фактического вида. Показать все Ширина светового проема800 ммВысота светового проема1860 ммТемпературный режимНизкотемпературный (до -25) Толщина80 ммБрендСеверВсе откатные холодильные двери толщиной 80 ммВсе низкотемпературные откатные холодильные двери Все откатные холодильные двери Север Оставить отзыв Еще никто не оставил отзыв на этот товар Буклет двери изотермические и технологические ТМ Север.pdfСхема монтажа двери.jpg Похожие товары Перейти в каталог Под заказ 64 316 ₽ Откатная холодильная дверь Север НТ-ОХД 1000*1860/80 Под заказ 64 576 ₽ Откатная холодильная дверь Север НТ-ОХД 1200*1860/80 Под заказ 73 762 ₽ Откатная холодильная дверь Север НТ-ОХД 1400*1860/80 Под заказ 81 962 ₽ Откатная холодильная дверь Север НТ-ОХД 1600*1860/80 С этим товаром покупают В наличии 100 000 ₽ Камера холодильная Polair КХН-2,94 (1360×1360×2200) В наличии 195 083 ₽ Сплит-система холодильная среднетемпературная Polair SM 337 S Под заказ 580 125 ₽ Компрессорно-конденсаторный агрегат POLAIR CUB - LLZ024 Под заказ 3 856 ₽ ПВХ завеса Север 400х4 перекр. 50 мм